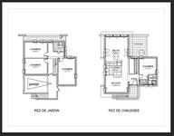
 Projet de MAISON à BRUEIL en VEXIN (78) |  Projet de maison contemporaine de 120 m2 habitables, constructible de suite: 6 pièces sur deux niveaux: Séjour - Salon = 34.00 m2 - Chambres = de 11.50 m2 à 16.00 m2 - 1 salle de bain + 1 salle d'eau. Eau chaude solaire - citerne d'eau - Objectif de performance BBC;
Terrain arboré et entièrement clos de vieux murs de moellons à 30 mns de Paris par l'A 13 - A 14, et proche A 15. Lot de 1200 m2, au calme, dans un hameau recherché du Vexin, entre Poissy, Mantes la Jolie et Cergy.
PRIX clefs en mains compris garage: 425.000,00€
|
| | |
|